




Riferimento EX04225492
Data Asta: 13/03/2026
Appartamento All'asta In Via Roma N 20 - 66030 Carpineto Sinello (CH) - LOTTO UNICO
178 mq
5+ locali
€ 17.403
Descrizione
🏡 casa unifamiliare con corte esclusiva all'asta a carpineto sinello
Questa casa unifamiliare, proposta all'asta, è un'opportunità ideale per chi cerca una soluzione abitativa con ampi spazi esterni nel cuore dell'Alto Vastese. Immersa nello scenario collinare tipico del paese, l'immobile si presta sia come prima casa che come investimento da valorizzare.
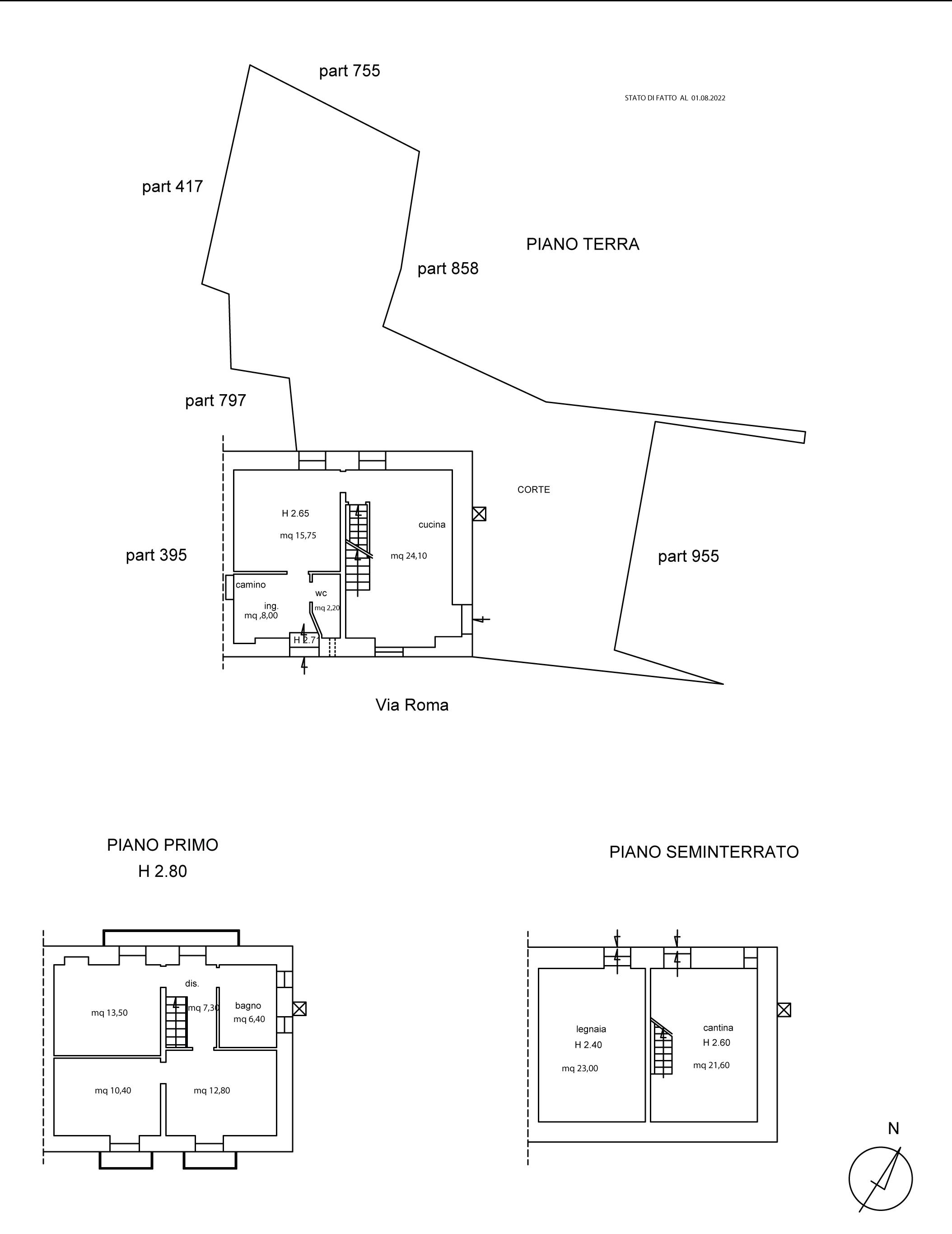
La proprietà è composta da un'unità abitativa su più livelli per una superficie commerciale totale di 182,31 mq (abitazione 147,78 mq). Al piano terra si sviluppa un ampio ambiente cucina, soggiorno adiacente, ingresso secondario e servizio; il piano primo ospita tre camere e un bagno; il piano seminterrato comprende cantina e locale tecnico con accesso dalla corte esterna. Sono presenti inoltre tre balconi e una corte esclusiva di circa 154,5 mq che garantisce spazi esterni privati. Riscaldamento autonomo con radiatori, copertura a doppia falda con manto in coppi e struttura portante in pietra, tipica dell'edilizia locale.
Punti di forza: posizione centrale su via Roma con vista aperta, corte esclusiva ampia, ambienti generosi e struttura in pietra dal carattere tradizionale. Stato di conservazione valutato buono; impianti oggetto di manutenzione recente (SCIA 24/04/2018). Criticità da considerare: sono presenti difformità interne rispetto alla planimetria catastale (tramezzi non denunciati) che richiedono regolarizzazione urbanistica tramite accertamento di conformità ; la CTU segnala inoltre la possibilità di dover eseguire una verifica strutturale e, se necessario, una conformità sismica postuma (costi stimati indicativamente intorno a €10.000) con oneri complessivi per sanatoria e aggiornamenti catastali stimati intorno a €13.000. Trasparenza su opportunità e oneri è utile per valutare correttamente l'acquisto all'asta.
Contesto e servizi: l'immobile si trova nel centro abitato di Carpineto Sinello (CH), piccolo borgo dell'Alto Vastese, servito da ufficio postale, farmacia e negozi di prima necessitĂ ; dista circa 20 km in linea d'aria da Vasto e circa 40 minuti di auto. La posizione fronte strada provinciale lo rende facilmente accessibile.
📍 Dettagli principali:
• Tipologia: casa unifamiliare su più livelli (unità abitativa)
• Superficie: commerciale totale 182,31 mq (abitazione 147,78 mq; cantina/locale tecnico 70,50 mq; balconi 5,85 mq; corte 154,5 mq)
• Piano: S1 - T - 1 (seminterrato, piano terra, primo) – nessun ascensore
• Località : Carpineto Sinello (CH)
• Stato: buono; epoca di costruzione antecedente al 1967; ristrutturata e manutenzionata
• Pertinenze: corte esclusiva di circa 154,5 mq, cantina e locale tecnico
• Classe energetica: attestazione di prestazione energetica in allegato (in corso di validità )
Vuoi partecipare all'asta o ricevere maggiori informazioni per valutare l'acquisto all'asta? Contattaci e ti accompagniamo passo dopo passo.
I documenti e le immagini in questa pagina sono stati raccolti dal portale di vendite pubbliche ministeriale.