NESSUNA PROVVIGIONE





NESSUNA PROVVIGIONE
Riferimento ST12177
Deposito In Vendita All'asta, C.da S. Calcagna, Rocca S. Giovanni (CH)
241 mq
€ 59.775
Caratteristiche principali
- 241 mq
- Classe F
Descrizione
In vendita all'asta immobile ad uso commerciale sito in Contrada Santa Calcagna. Il deposito/magazzino è posto al piano seminterrato di un edificio elevato su più livelli a destinazione prevalentemente residenziale.
L'immobile è dotato di un ingresso indipendente carrabile, accessibile mediante una rampa esterna in calcestruzzo con pendenza stimata intorno al 15%, nonché di un secondo accesso interno tramite la scala condominiale, che collega
verticalmente tutti i livelli dell'edificio.
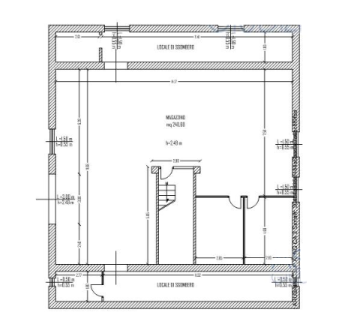
SUPERFICIE
L'immobile all'asta dispone di una superficie complessiva di circa 241mq.
CARATTERISTICHE IMMOBILE
La struttura è realizzata in cemento armato, con tamponamenti in muratura e finiture ordinarie, solaio in latero-cemento e copertura a falda. coerenti con la destinazione a deposito. L'unità presenta parziale esposizione alla luce naturale. L'accesso avviene sia tramite rampa carrabile esterna che tramite scala condominiale interna.
DESCRIZIONE ZONA
L'immobile all'asta è ubicato in una zona artigianale, le zone limitrofe si trovano in un'area residenziale. Il traffico nella zona è limitato. Sono inoltre presenti i servizi di urbanizzazione primaria e secondaria.
CITTA' LIMITROFE
- Fossacesia: dista circa 1,5 km dal comune
- Treglio: dista circa 3,8 km dal comune
- San Vito Chietino: dista circa 5,7 km dal comune
- Lanciano: dista circa 6,0 km dal comune.
ATTRAZIONI
- Centro storico, Il borgo medievale, con vicoli caratteristici, resti delle antiche mura e scorci panoramici.
- Torre campanaria / Torre medievale, Resta importante di una delle torri di guardia del centro. Offre belle viste sul mare e sul paesaggio circostante.
- Spiaggia del “Cavalluccio”, Spiaggia con ciottoli bianchi, un trabocco, e lo “Scoglione” (un faraglione roccioso) molto suggestivo. Acque limpide, spesso premiata con Bandiera Blu.
- Trabocchi, Le tradizionali macchine da pesca sospese sul mare: caratteristiche tipiche della Costa dei Trabocchi. I trabocchi sono sia attrazioni visive che parte del patrimonio culturale locale.

I documenti e le immagini in questa pagina sono stati raccolti dal portale di vendite pubbliche ministeriale.