NESSUNA PROVVIGIONE





NESSUNA PROVVIGIONE
Riferimento ST6715
Trilocale Con Accessori All'asta In Via Xxv Aprile A Celico (CS)
119 mq
3 locali
€ 39.000
Caratteristiche principali
- 119 mq
- 3 locali
- 2 bagni
- Classe F
Descrizione
TRILOCALE CON ACCESSORI ALL'ASTA IN VIA XXV APRILE A CELICO (CS)
Si propone appartamento sito in via XXV Aprile, Comune di Celico (CS).
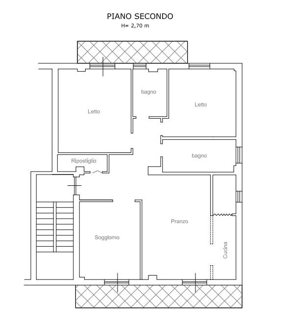
Si tratta di appartmento ubicato al secondo piano, composta da: soggiorno, cucina, sala da pranzo, due camere da letto, due bagni, ripostiglio e due balconi. L'immobile risulta libero al decreto di trasferimento e presenta una superficie commerciale pari a 119 mq.
Gli infissi sono in alluminio anodizzato, completi di persiana esterna, i pavimenti in gres ceramico, mentre i bagni sono rivestiti con piastrelle smaltate. I materiali utilizzati nella costruzione garantiscono la protezione acustica degli ambienti. Sono presenti tutti gli impianti essenziali. L’appartamento è dotato impianto elettrico ed idrico, e di impianto di riscaldamento a termosifoni alimentato a metano.
L'appartamento fa parte di un edificio condominiale di 3 piani fuori terra, presenta una struttura intelaiata in cemento armato e tompagnatura in laterizi.
DESCRIZIONE DELLA ZONA
Celico, si trova a metà strada tra la città di Cosenza e l'altopiano Silano, estende gran parte del proprio territorio sull'altopiano stesso, con la frazione Fago del soldato e le contrade rurali di Lagarò, Salerni, Muzzo, Torrebarone, Calamauci e Serra Giumenta. Inoltre ricade nel suo territorio più della metà del Lago Cecita.
DATI CATASTALI
Identificazione catastale
- foglio 39, particella 321, sub 6, con rendita di euro 297.48, 6 vani, categoria A3, classe 1, si trova sulla SS 107 SNC, piano 2.

I documenti e le immagini in questa pagina sono stati raccolti dal portale di vendite pubbliche ministeriale.