NESSUNA PROVVIGIONE





NESSUNA PROVVIGIONE
Riferimento ST4338
Abitazione All'asta In Contrada Serra Longa B, Rose (CS)
264 mq
5+ locali
€ 72.000
Caratteristiche principali
- 264 mq
- 5+ locali
- 2 bagni
- Classe G
Descrizione
ABITAZIONE ALL'ASTA IN CONTRADA SERRA LONGA B, ROSE (CS)
Si propone abitazione all'asta in Contrada Serra Longa B, siti nel Comune di Rose (CS).
L'immobile è costituito da due appartamenti indipendenti tra loro, posti rispettivamente al piano terra e al primo piano e comunicanti tramite vano scala comune. Essi risultano così composti:
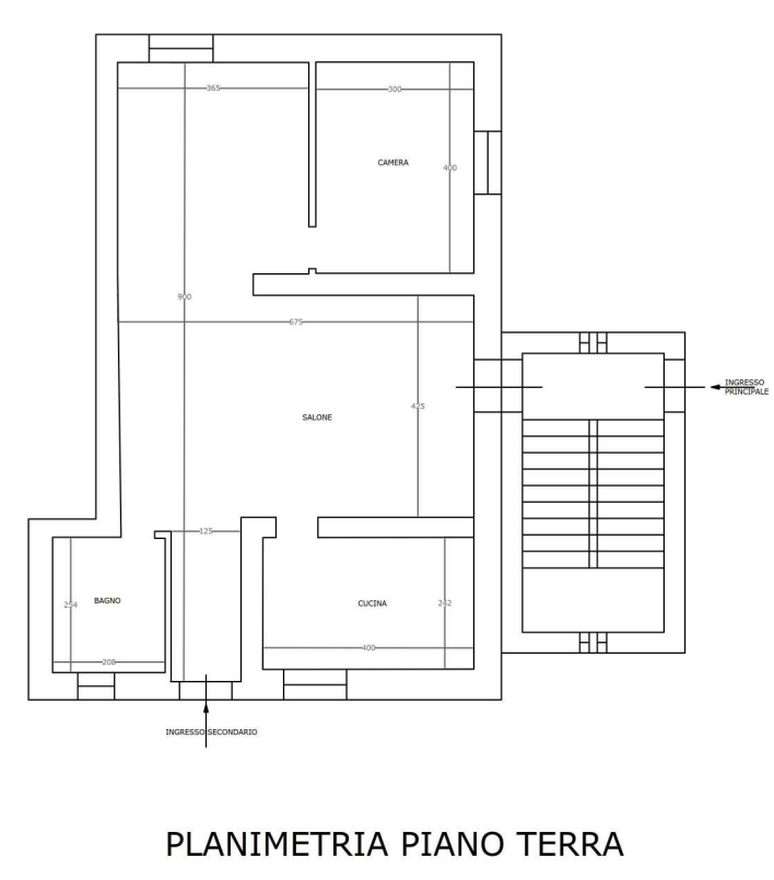
• APPARTAMENTO AL PIANO TERRA: di 100 mq, costituito da un ingresso, un grande salone con zona pranzo, cucina, una camera da letto matrimoniale e un bagno;
• APPARTAMENTO AL PRIMO PIANO: di 164 mq, costituito da un grande salone con zona pranzo, una cucina, un secondo salone, tre camere, di cui una matrimoniale, e un bagno.
L'appartamento ubicato al PRIMO PIANO, inoltre, vanta la presenza di un piccolo balcone di 3,75 mq.
Esternamente, l'edificio presenta una struttura portante in mattoni di laterizio e solai in latero-cemento. L'accesso è garantito da un cancello esterno che introduce in un cortile di pertinenza dell'abitazione.
Entrambi gli appartamenti godono di un buono stato di manutenzione; essi dispongono di porte in legno, mentre gli infissi sono in legno e alluminio corredati da persiane in alluminio. I pavimenti sono in cotto in tutti i locali. L'appartamento al PIANO TERRA, inoltre, dispone di due ingressi, uno direttamente dall'esterno e l'altro dal vano scala.
E' presente un impianto di riscaldamento a pavimento alimentato da termo camino, il quale è a servizio di entrambi gli appartamenti.
IDENTIFICAZIONE CATASTALE
Identificato presso il Catasto fabbricati del Comune di Rose (CS) come segue:
- Foglio 12, particella 163, subalterno 2, categoria A/3 classe 1, consistenza 11,5 vani, superficie catastale totale 294 mq. - superficie catastale totale escluse aree scoperte 293 mq., rendita Euro 697,22.

I documenti e le immagini in questa pagina sono stati raccolti dal portale di vendite pubbliche ministeriale.