NESSUNA PROVVIGIONE





NESSUNA PROVVIGIONE
Riferimento ST9718
Data Asta: 23/04/2026
Capannoni Artigianali All'asta In Via Al Ponte, Bordolano (CR)
296 mq
€ 22.662
Caratteristiche principali
- 296 mq
- 2 bagni
- Classe F
Descrizione
In vendita capannoni all'asta in Via Al Ponte n.8.
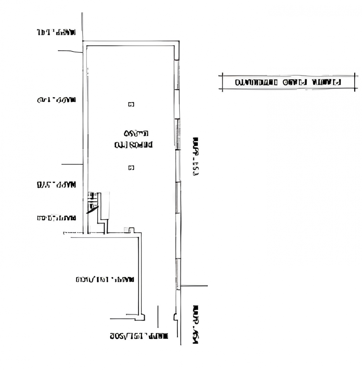
CAPANNONE
Trattasi di capannone ad uso artigianale, posto al piano terra ed all'interno di una proprietà con cui ha in comune il cortile di accesso. Di forma rettangolare, con struttura in cemento armato e muratura. Unico vano con in lato Est un ufficio e gli spogliatoi con servizi igienici. Dotato di impianto elettrico esterno e pavimentato con moquette. Le pareti sono intonacate. Internamente i locali sono occupati da "quinte" in legno e cartongesso, di facile asporto. Il capannone di fatto è collegato ad un altro capannone.
CAPANNONE
Trattasi di capannone ad uso artigianale, disposto su due piani (S1-T) collegati tra loro da una scala interna. L'immobile ha una forma rettangolare, con struttura in cemento armato e muratura, copertura tradizionale. Il piano terra era adibito ad esposizione di mobili, il piano interrato adibito a laboratorio.
Dotato di impianto elettrico esterno e pavimentato con moquette. Le pareti sono intonacate. Internamente i locali sono occupati da "quinte" in legno e cartongesso, di facile asporto.
SUPERFICIE COMMERCIALE
Gli immobili in asta presentano una superficie complessiva pari a 295,70 mq.
DESCRIZIONE DELLA ZONA
L'immobile all'asta è ubicato in una zona residenziale, le zone limitrofe si trovano in un'area residenziale. Il traffico nella zona è limitato. Sono inoltre presenti i servizi di urbanizzazione primaria e secondaria.

I documenti e le immagini in questa pagina sono stati raccolti dal portale di vendite pubbliche ministeriale.