NESSUNA PROVVIGIONE





NESSUNA PROVVIGIONE
Riferimento ST9571
Ampio Negozio Con Giardino All'asta In Via Roma, Arcidosso (GR)
398 mq
€ 76.320
-45%Caratteristiche principali
- 398 mq
- 1 bagno
- Classe F
Descrizione
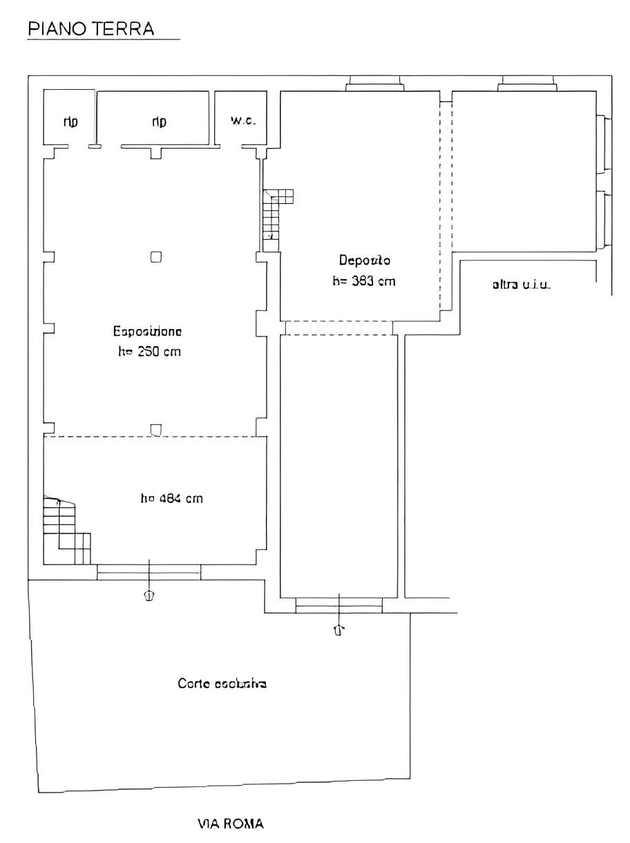
In vendita all'asta un locale commerciale sito in Via Roma 47/49. L'immobile è strutturalmento composto da un primo corpo, a pianta rettangolare, nel quale è stato ricavato un ampio soppalco ed un corpo ad esso affiancato avente forma ad “L”.
1) Il primo corpo, posizionato al civico 49 di via Roma, ospita complessivamente un autosalone strutturato al piano terra in un grande ambiente (parzialmente soppalcato) ed alcuni ambienti di servizio sul fondo dello stesso: due ripostigli e un bagno. Con una scala a giorno in metallo, autoportante, si raggiunge il soppalco organizzato con scaffalature e strutture mobili che permettono di ricavare, tra l’altro, due uffici. Lo stesso soppalco ha altezza pari a 2,12 m (2,24 m nella parte tergale).
2) Il secondo corpo, con accesso indipendente al civico 47 di via Roma, è adibito a magazzino. Attualmente funge da mero deposito di oggettistica varia.
La proprietà comprende, altresì, una piccola pertinenza esclusiva, posta sul fronte antistante i due ingressi.
SUPERFICIE COMMERCIALE
L'immobile in asta dispone di una superficie commerciale di 397,6 mq.
IMPIANTI
Complessivamente, l’immobile in asta è dotato di impianto elettrico e di adduzione di acqua. Grazie ad un boiler elettrico posto nel bagno è garantita la produzione di acqua calda sanitaria.
CARATTERISTICHE ZONA
L'immobile all'asta è ubicato in una zona residenziale, le zone limitrofe si trovano in un'area residenziale. Il traffico nella zona è limitato. Sono inoltre presenti i servizi di urbanizzazione primaria e secondaria.

I documenti e le immagini in questa pagina sono stati raccolti dal portale di vendite pubbliche ministeriale.