




Riferimento EX8038694
Ampio Appartamento All'asta In Viale Tunisia, Milano (MI) - LOTTO 2
98 mq
4 locali
€ 302.250
Descrizione
In vendita all'asta un immobile sito in Viale Tunisia 13, nel comune di Milano (MI).
DESCRIZIONE DELL'IMMOBILE
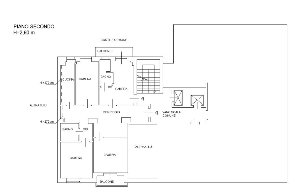
Trattasi di un appartamento posto al piano secondo con doppia esposizione composta da un corridoio di disimpegno, quattro camere, una cucina, due bagni, un piccolo dispegno e due balconi. L’unità è dotata di doppio ingresso. Al piano interrato è presente la cantina di pertinenziale.
SUPERFICIE COMMERCIALE
L'immobile in asta dispone di una superficie commerciale di 98 mq.
STATO OCCUPATIVO
L'immobile è tenuto in buone condizioni grazie alla presenza degli inquilini.
EDIFICIO
L'edificio è caratterizzato da un totale di nove piani fuori terra, adibiti a residenze e uffici, oltre al piano seminterrato, adibito a cantine, box e magazzini. Il piano nono, sottotetto, è adibito in parte a residenza ed in parte a depositi/solai privati e lastrico solare
condominiale. L'ingresso allo stabile è posto lungo Viale Tunisia ed ha valenza sia pedonale, posto al civico 13, che carrabile, posto al civico 11.
CARATTERISTICHE ESTERNE
Le facciate su strada sono rivestite in pietra colore grigio per tutto il piano terra ed in pietra colore beige per i restanti piani in condizioni nella norma; i balconi hanno parapetti in ferro di colore grigio scuro con bacchette in ferro a disegno semplice. Le facciate sul cortile interno sono intonacate e verniciate di colore beige con porzioni necessitanti di manutenzione; i balconi hanno parapetti in ferro di colore grigio scuro con bacchette in ferro a disegno semplice. Il rivestimento del pavimento dell’atrio di ingresso, del vano scala e dei pianerottoli è in marmo.
IMPIANTI
L'immobile è dotato di doppio ascensore, è dotato di impianto citofonico e del servizio di portineria. Tutte le unità immobiliari hanno riscaldamento centralizzato a pannelli. L'acqua calda sanitaria, oltre agli eventuali condizionatori e naturalmente anche l'impianto elettrico, sono a gestione autonoma.
CARATTERISTICHE ZONA
Gli immobili sono parte di un edificio condominiale, ubicato in Viale Tunisia nn. 11 e 13 ad angolo con Largo Fra Paolo Bellintani, zona semicentrale nord est della città, in prossimità della stazione Centrale. La zona è provvista di servizi di urbanizzazione primaria e secondaria.
COLLEGAMENTI
Buoni i collegamenti di mezzi pubblici di superficie linee (tram linee 1, 5 e 33) e sotterranei (MM1 Porta Venezia, Lima e Repubblica).
SERVIZI
Buona la presenza di servizi alla residenza con presenza di negozi, bar, locali pubblici e spazi verdi (Giardini Pubblici Indro Montanelli nelle immediate vicinanze).
IDENTIFICAZIONE CATASTALE
L'unità residenziale risulta identificata al Catasto Fabbricati come segue:
• fg. 314, mapp. 119, sub. 53, cat. A/3, classe 7, zona cens. 2, consistenza: 6 vani, Rendita € 1.332,46, piano: 2-S1

I documenti e le immagini in questa pagina sono stati raccolti dal portale di vendite pubbliche ministeriale.