


Riferimento EX8524038
Appartamento All'asta In Via Cristoforo Colombo, 17 Massa E Cozzile (PT) - LOTTO UNICO
87 mq
2 locali
€ 75.000
Descrizione
Hai sempre sognato di avere un appartamento tutto tuo? Questa è la tua occasione! Un bellissimo immobile sarà messo all'asta dal Tribunale di Pistoia, con un'offerta minima di soli 75000.00 €.
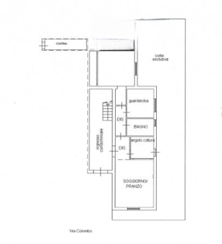
L'appartamento è situato al piano terra di un edificio condominiale e viene utilizzato come residenza. È composto da diverse stanze, tra cui un ingresso, un soggiorno, un angolo cottura, un servizio igienico, un guardaroba, un disimpegno e una camera da letto. Inoltre, l'appartamento dispone di una cantina e di un resede esclusivo, che è un'area esterna privata. Infine, è presente anche un posto auto coperto riservato all'appartamento.
Si parla di insediamenti di sviluppo recente dove vive gran parte della popolazione del Comune. Grazie alla sua posizione altimetrica, in giornate particolarmente limpide, si possono vedere tutte le dieci province della Toscana. Nelle immediate vicinanze potrai trovare diversi servizi tra i quali supermercato (0.86 km), poste (0.59 km), scuola (0.61 km), banca (0.64 km), bancomat (4.59 km), bar (0.75 km), fermata autobus (1.06 km), siti storici (0.97 km).
I documenti e le immagini in questa pagina sono stati raccolti dal portale di vendite pubbliche ministeriale.