NESSUNA PROVVIGIONE





NESSUNA PROVVIGIONE
Riferimento ST5069
Appartamento All'asta Con Balcone In Piazza Giovanni Xxiii, Frascati (RM)
87 mq
4 locali
€ 79.500
Caratteristiche principali
- 87 mq
- 4 locali
- 1 bagno
- Autonomo
- Classe G
Descrizione
APPARTAMENTO ALL'ASTA CON BALCONE IN PIAZZA GIOVANNI XXIII, FRASCATI (RM)
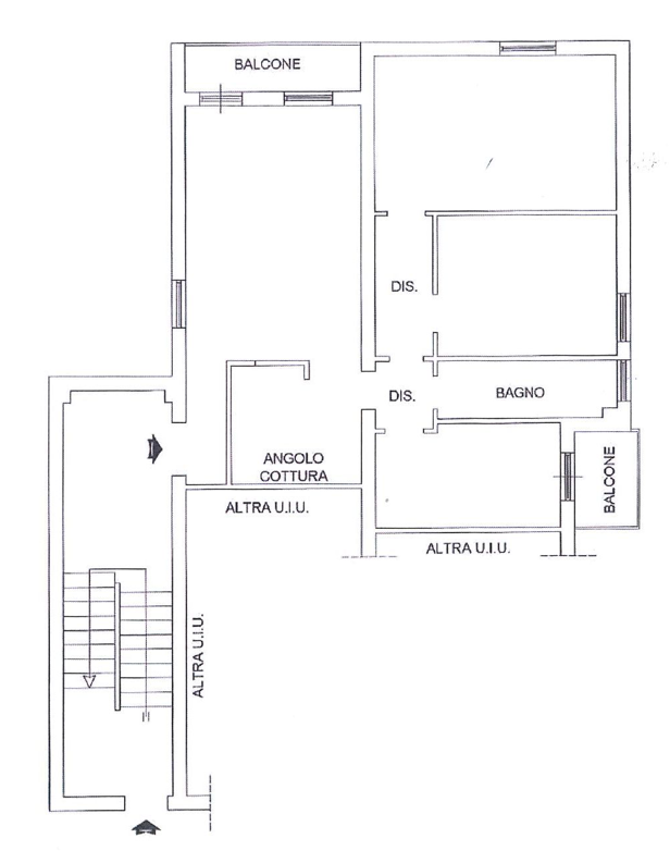
Si propone all'asta quadrilocale con accessori sito in Piazza Giovanni XXIII n. 1 - interno 2, nel Comune di Frascati (RM).
L'appartamento è libero, ha una superficie di 87,30 mq, è situato al piano ammezzato, ed è composto da:
• ingresso
• soggiorno con cucina a vista
• 3 camere da letto
• bagno con doccia
• 2 balconi.
Le fondazioni sono del tipo a sacco, le strutture verticali sono caratterizzate da muratura di tufo, i solai sono del tipo latero cementizio. La copertura in latero cemento, il manto di copertura è caratterizzato da tegole alla romana, con gronde e discendenti in ferro.
L'esposizione è sud.
Le pareti esterne sono rifinite ad intonaco civile, tinteggiate in tonalità delle terre; le pareti interne sono rifinite ad intonaco civile, tinteggiate con pittura lavabile e rivestite con carta da parati, mentre per il bagno sono rivestite con maioliche di colore chiaro.
La pavimentazione interna è caratterizzata da piastrelle di ceramica.
Gli infissi interni sono in alluminio anodizzato con vetro singolo, quelli esterni sono in legno con persiane alla romana. All’interno sono presenti porte in legno tamburato, eccetto quella di ingresso che è in legno massello.
Sono presenti l'impianto elettrico e idrico sottotraccia; l'impianto termico è autonomo con termosifoni in alluminio e la produzione di acqua calda avviene con caldaia a metano.
L'immobile è ubicato nel Comune di Frascati, comune italiano di 22.239 abitanti della città metropolitana di Roma Capitale, nell'area dei Castelli Romani, nel Lazio.
- IDENTIFICAZIONE CATASTALE
Identificato al Catasto Fabbricati del Comune di Frascati (RM) come segue:
• foglio 20, particella 409, subalterno 2, categoria A/4, classe 3, consistenza 5 vani, rendita catastale € 438,99.

I documenti e le immagini in questa pagina sono stati raccolti dal portale di vendite pubbliche ministeriale.