NESSUNA PROVVIGIONE





NESSUNA PROVVIGIONE
Riferimento ST8838
Magazzino/laboratorio All'asta In Via Guidobono, Savona (SV)
606 mq
5+ locali
€ 35.808
Caratteristiche principali
- 606 mq
- 5+ locali
- Classe F
Descrizione
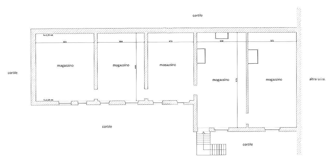
In vendita all'asta locali a destinazione laboratorio/magazzino siti in Via Guidobono 4. Gli immobili, posto al piano terreno e primo di un condominio, risulta così composto:
- PIANO TERRA: laboratori, magazzini, depositi, cella frigo, forno, cortile coperto e cortile scoperto
- PIANO PRIMO: n° 5 locali identificati come magazzini
SUPERFICIE COMMERCIALE
L'immobile in asta dispone di una superficie commerciale di 606 mq.
CARATTERISTICHE EDILIZIE E STRUTTURALI
I caratteri di finitura dell’unità immobiliare consistono in: pavimenti in gres, pareti tinteggiate e/o parzialmente rivestite in piastrelle di ceramica, porte interne del tipo anti-incendio con apertura a spinta, finestre in legno e vetro semplice dotate di grate antiintrusione.
DESCRIZIONE DELLA ZONA
I beni sono ubicati in zona centrale in un'area mista residenziale/commerciale, le zone limitrofe si trovano in un'area mista residenziale/commerciale. Il traffico nella zona è scorrevole, i parcheggi sono sufficienti. Sono inoltre presenti i servizi di urbanizzazione primaria e secondaria.
COLLEGAMENTI
- aeroporto: distante 43 km
- autobus: distante 0,2 km
- autostrada: distante 15 km
- ferrovia: distante 2 km
- porto: distante 1,5 km

I documenti e le immagini in questa pagina sono stati raccolti dal portale di vendite pubbliche ministeriale.