




Riferimento EX8018382
Palestra All'asta In Via Castelgomberto, Torino (TO) - LOTTO 1
1079 mq
€ 405.000
Descrizione
In vendita palestra all'asta in via Castelgomberto n. 116 e n. 122/B.
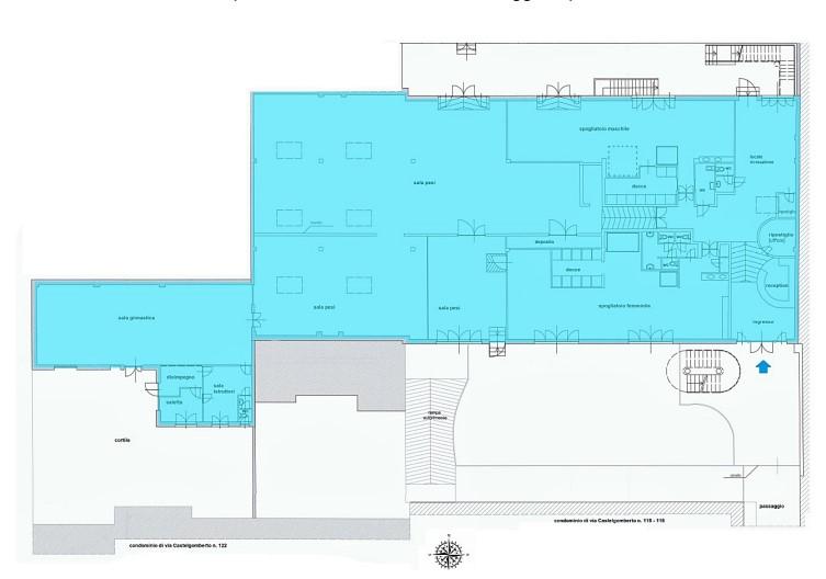
Al piano terra (1° f.t.) porzione immobiliare destinata ad uso palestra composto da: ingresso-reception, locale ricreazione, due locali ripostiglio, servizio igienico, locale spogliatoio femminile con annessi servizi igienici, blocco docce ed accessori, locale spogliatoio maschile con servizio igienico, blocco docce e accessori, vano deposito, due sale pesi. Al piano copertura: locale ad uso centrale termica raggiungibile tramite rampa di scala in metallo.
Al piano terra (1° f.t.) porzione immobiliare destinata ad uso palestra composta da: sala ginnastica, saletta istruttori, servizio igienico, altra saletta. Al piano interrato: un locale cantina adibito a vano tecnico per l'alloggiamento delle dotazioni impiantistiche.
SUPERFICIE COMMERCIALE
L'immobile in asta presenta una superficie complessiva pari a 1.079,00 mq.
Edificio elevato a sette piani fuori terra, oltre piano sottotetto ed un piano interrato, un giardino/cortile ed un basso edificio posto
nell’interno cortile, oltre a due ingressi pedonali e due passaggi carrai.

I documenti e le immagini in questa pagina sono stati raccolti dal portale di vendite pubbliche ministeriale.